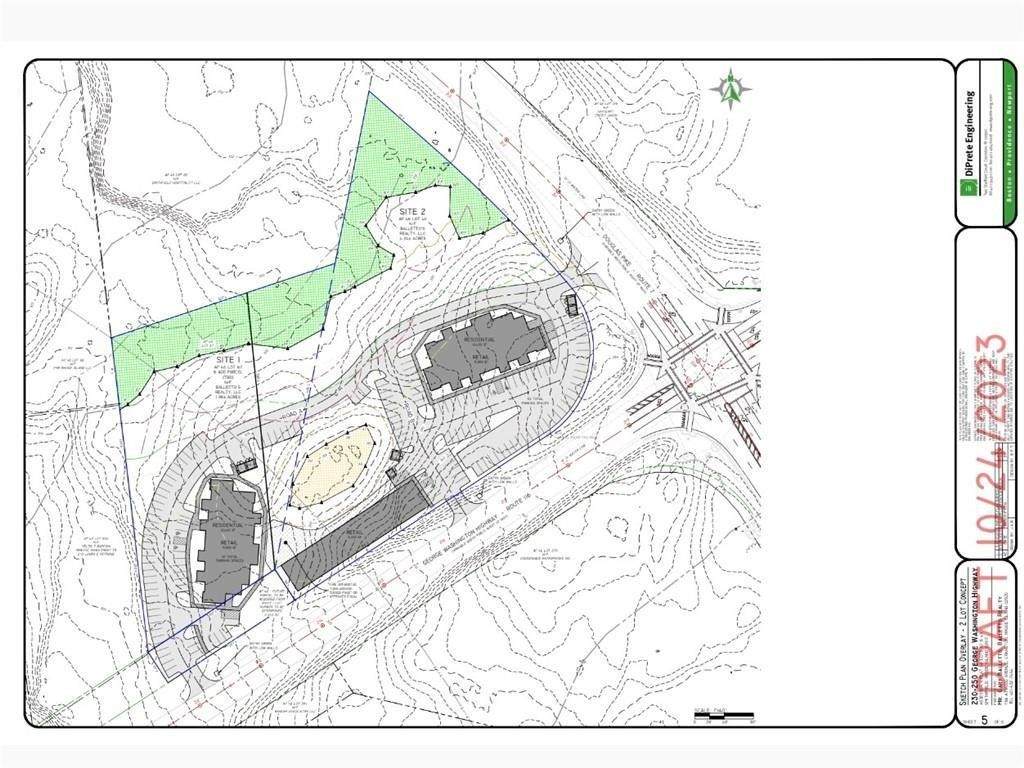
Description
Attention investors/developers: Buy this single-family home now and develop the property later. Be part of Rhode Island's next hottest area for development!! Pad-ready with Master plan approval for 21 residential units and 9000 ft. retail. Prime location, high traffic visibility, next to corner lot of 250 George Washington Highway and Douglas Pike - close to 146 and 295. Zoned Planned Corporate and being part of the Overlay District there are many uses possible. Currently on site exists a single-family home. Opportunity for a combined purchase w/abutting property 250 George Washington Highway, totaling 6+ acres. Call for details. SITE 2 (Lot 411) 250 George Washington Highway $2,982,000 Resident 42 units @ 71K per door $2,518,764 Retail - 21,950 ft. retail @ $45 per ft. = $987,750 - 15% vacancy = $839,588 AOI $2,518,763 Land Cost (3 years of income) $4,179,940 Replacement Cost (5 years income) $1,679,176 Developers Profit (2 years income) $5,500,764 Land Value/Sale Price (Lot 411)
-
2BEDS
-
2.53ACRES
-
1BATHS
-
11/2 BATHS
-
1,275SQFT
-
$2,157$/SQFT
School Ratings & Info
Description
Attention investors/developers: Buy this single-family home now and develop the property later. Be part of Rhode Island's next hottest area for development!! Pad-ready with Master plan approval for 21 residential units and 9000 ft. retail. Prime location, high traffic visibility, next to corner lot of 250 George Washington Highway and Douglas Pike - close to 146 and 295. Zoned Planned Corporate and being part of the Overlay District there are many uses possible. Currently on site exists a single-family home. Opportunity for a combined purchase w/abutting property 250 George Washington Highway, totaling 6+ acres. Call for details. SITE 2 (Lot 411) 250 George Washington Highway $2,982,000 Resident 42 units @ 71K per door $2,518,764 Retail - 21,950 ft. retail @ $45 per ft. = $987,750 - 15% vacancy = $839,588 AOI $2,518,763 Land Cost (3 years of income) $4,179,940 Replacement Cost (5 years income) $1,679,176 Developers Profit (2 years income) $5,500,764 Land Value/Sale Price (Lot 411)
© 2026 State-Wide Multiple Listing Service. All rights reserved. The data relating to real estate for sale or lease on this web site comes in part from the Internet Data Exchange (IDX) program of the State-Wide MLS. Real estate listings held by brokerage firms other than The Seyboth Team | Century 21 are marked with the MLS logo or an abbreviated logo and detailed information about them includes the name of the listing broker. Information is deemed reliable but is not guaranteed accurate by the MLS or The Seyboth Team | Century 21. IDX information is provided exclusively for consumers' personal, non-commercial use and may not be used for any purpose other than to identify prospective properties consumers may be interested in purchasing. Data last updated: 2026-01-16T23:37:42.11.
