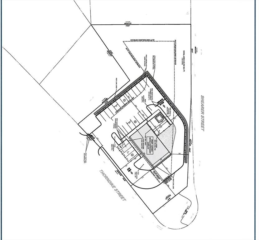
Description
Zoned "Highway Business", this lot has a multitude of possibilities. Looking for a great place to relocate your business or have a business you would like to expand then check out this high visibility location. Piggy back on the current traffic going on and off the Pike, to the new Starbucks or Jersey Mikes. Palmer is a hot spot with a train stop coming to town your local business could thrive here. Seller had plans approved for 2,800 sf commercial building with parking but your dream might not be theirs.
School Ratings & Info
Description
Zoned "Highway Business", this lot has a multitude of possibilities. Looking for a great place to relocate your business or have a business you would like to expand then check out this high visibility location. Piggy back on the current traffic going on and off the Pike, to the new Starbucks or Jersey Mikes. Palmer is a hot spot with a train stop coming to town your local business could thrive here. Seller had plans approved for 2,800 sf commercial building with parking but your dream might not be theirs.
The property listing data and information set forth herein were provided to MLS Property Information Network, Inc. from third party sources, including sellers, lessors and public records, and were compiled by MLS Property Information Network, Inc. The property listing data and information are for the personal, non commercial use of consumers having a good faith interest in purchasing or leasing listed properties of the type displayed to them and may not be used for any purpose other than to identify prospective properties which such consumers may have a good faith interest in purchasing or leasing. MLS Property Information Network, Inc. and its subscribers disclaim any and all representations and warranties as to the accuracy of the property listing data and information set forth herein. Data last updated 2026-02-14T23:03:36.547.
