Description
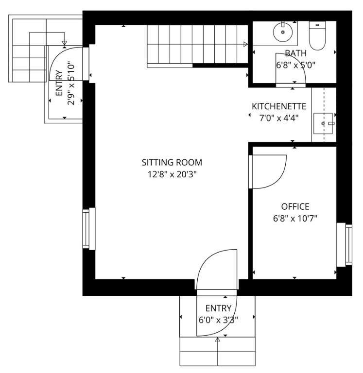
Great opportunity to own a completely renovated freestanding office building on a highly visible corner lot in a central, easily accessed location. This property underwent a complete rehabilitation including all structural, mechanical, and cosmetic systems, offering buyers peace of mind and many years of low-maintenance ownership. The main office space spans two floors and includes a welcoming waiting area with durable porcelain tile flooring, kitchenette, bathroom, and private office on the first floor. Upstairs, you'll find two additional private offices and a second bathroom, also finished with porcelain tile and premium Vigo vessel sinks. The 400+/- sq. ft. unfinished basement, complete with a separate entrance and bathroom hookups, provides excellent potential for a secondary office suite, rental income, or secure storage. This property is move-in ready and perfect for professionals seeking a turnkey solution in a high-visibility location. The property also features excellent signage with a very high daily car count and quick access to all points including Providence, RI Airport, Rail, Interstates & more. Can be conveyed furnished for immediate use.
-
0BEDS
-
0.02ACRES
-
0BATHS
-
01/2 BATHS
-
1,398SQFT
-
$285$/SQFT
School Ratings & Info
Description
Great opportunity to own a completely renovated freestanding office building on a highly visible corner lot in a central, easily accessed location. This property underwent a complete rehabilitation including all structural, mechanical, and cosmetic systems, offering buyers peace of mind and many years of low-maintenance ownership. The main office space spans two floors and includes a welcoming waiting area with durable porcelain tile flooring, kitchenette, bathroom, and private office on the first floor. Upstairs, you'll find two additional private offices and a second bathroom, also finished with porcelain tile and premium Vigo vessel sinks. The 400+/- sq. ft. unfinished basement, complete with a separate entrance and bathroom hookups, provides excellent potential for a secondary office suite, rental income, or secure storage. This property is move-in ready and perfect for professionals seeking a turnkey solution in a high-visibility location. The property also features excellent signage with a very high daily car count and quick access to all points including Providence, RI Airport, Rail, Interstates & more. Can be conveyed furnished for immediate use.
© 2025 State-Wide Multiple Listing Service. All rights reserved. The data relating to real estate for sale or lease on this web site comes in part from the Internet Data Exchange (IDX) program of the State-Wide MLS. Real estate listings held by brokerage firms other than The Seyboth Team | Century 21 are marked with the MLS logo or an abbreviated logo and detailed information about them includes the name of the listing broker. Information is deemed reliable but is not guaranteed accurate by the MLS or The Seyboth Team | Century 21. IDX information is provided exclusively for consumers' personal, non-commercial use and may not be used for any purpose other than to identify prospective properties consumers may be interested in purchasing. Data last updated: 2025-12-05T23:37:38.463.
